3D визуализация фасада коттеджа
Проект был выполнен для компании "ВитХаус", которой были изготовлены и смонтированы деревянные окна и раздвижные системы на частном строящемся объекте в минском районе.
На изображениях представлена новая услуга компании "3D-дизайн фасада загородного дома", включающую визуальное позиционирование проектируемого зимнего сада и кованых ограждений в экстерьере.
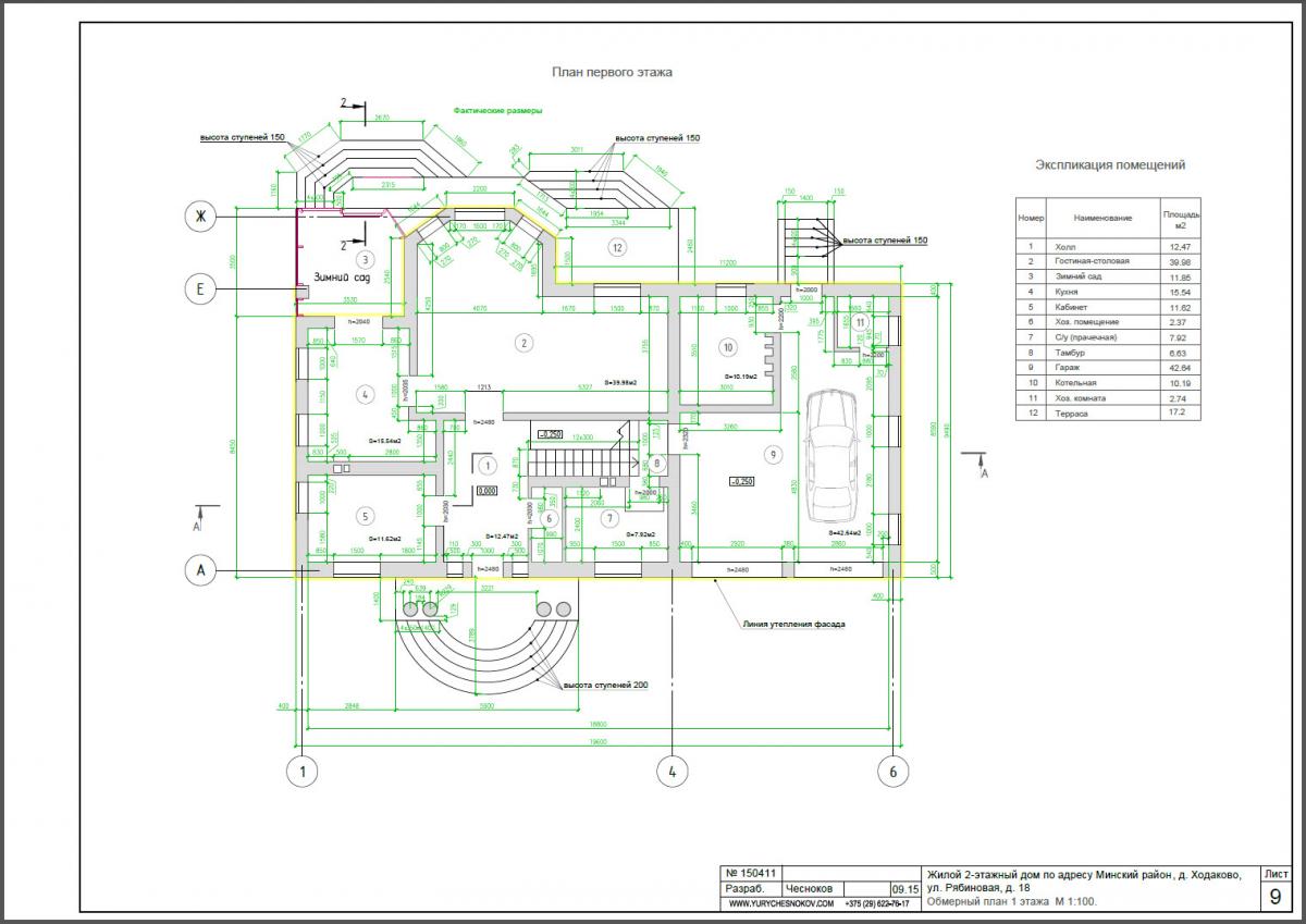
Как часть комплексного подхода были составлены фактические обмерные планы и разрезы (по факту объект построен с отклонениями от исходного проекта).










